Haus
Thale

Neue, moderne Doppelhaushälfte als Passivhaus standard (Effizienzhaus 40)

Kaufpreis 325.000 €
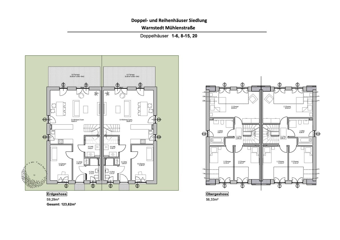
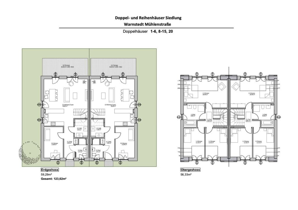
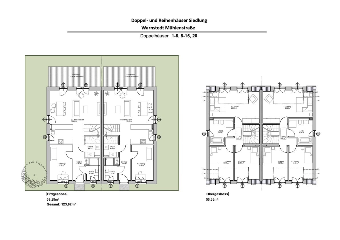
Wohnfläche 130 m²

Beschreibung

Highlights der modernen Doppelhaushalte:
- Sofort bezugsfertig
- Passivhausstandard (Effizienzhaus KFW 40)
- Photovoltaik mit hohen Eigenverbrauchansatz
- Batteriespeicher
- Moderne Luft-Wärmepumpe
- Filteranlage
- Klimasteuerung
- Videotürsprechanlage (per App steuerbar)
- Außenliegender Sonnenschutz
- Hoher Einbruchsschutz
- Glasfaseranschluss
- Wannenbad
-2 PKW Stellplätze auf dem eigenen Grundstück

Weiterhin haben wir im Wohngebiet Mühlenblick auch ein Reihenendhaus und ein Reihenmittelhaus im Verkauf.

Mehr anzeigenWeniger anzeigen

Ausstattung

Stellplatz
Ja
Dusche
Ja
Bad mit Badewanne
Ja
Fliesen
Ja
Laminat
Ja
Linoleum
Ja
Parken im Freien
Ja
Garten
Ja
DV Verkabelung
Ja
Abstellraum
Ja
Dachform
Walmdach
Bauweise
Massivbau
Gäste WC
Ja

Objektdaten

Ortsangaben
Standort
06502 Thale
Flächen
Wohnfläche
ca. 130 m²
Nutzfläche
ca. 20 m²
Grundstück
ca. 294 m²
Anzahl Zimmer
4
Anzahl der Schlafzimmer
3
Anzahl Badezimmer
1
Anzahl separater WCs
1
Anzahl Terrassen
1
Balkon-/Terrassenbereich
ca. 20 m²
Anzahl Stellplätze
1
Preisangaben
Kaufpreis
325.000 €
MwSt.
Alle Preise inkl. derzeit geltender MwSt.
Kaufpreis/m²
2.500 €
Käuferprovision
prov.frei
Verwaltungsinformationen
Bezugsfrei ab
nach Vereinbarung
Zustandsangaben
Baujahr
2025
Zustand
Erstbezug
Entwicklung
Vollerschlossen
Verfügbarkeit
Verfügbar

Kontakt

Lage

Die Doppelhaushälfte befindet sich in einer ruhigen Lage von Warnstedt, dem Wohngebiet Mühlenblick, einem Ortsteil der Stadt Thale, einer malerischen Stadt am Fuße des Harzes. Die Stadt zeichnet sich durch ihre idyllische Lage aus, umgeben von grünen Wäldern und mit herrlichem Blick auf die umliegenden Berge. Hier findet man vor allem Einfamilienhäuser und kleine Gärten, die eine familiäre Atmosphäre schaffen.

Thale ist bekannt für seine vielfältigen Freizeitmöglichkeiten und die Nähe zur Natur. Die Stadt bietet zahlreiche Wanderwege, Sehenswürdigkeiten wie die Rosstrappe und den Hexentanzplatz, sowie verschiedene kulturelle Veranstaltungen. In der Innenstadt gibt es gemütliche Cafés, Restaurants und Einkaufsmöglichkeiten, die zum Verweilen einladen.

Die Region um Thale ist besonders reizvoll für Naturliebhaber und Wanderer. Der Harz mit seinen dichten Wäldern, klaren Bächen und markanten Felsen bietet unzählige Möglichkeiten für Outdoor-Aktivitäten. Zudem gibt es viele historische Städte und Sehenswürdigkeiten in der Umgebung, die einen Besuch lohnen. Insgesamt bietet die Region eine hohe Lebensqualität und die Möglichkeit, die Natur in vollen Zügen zu genießen.

Mehr anzeigenWeniger anzeigen

Energieausweis

Baujahr2025
EnergieausweisVerfügbar
Energie­ausweistypBedarfsausweis
Erstellt am31.07.2025
Gültig bis31.07.2035
PrimärenergieträgerAlternative Energieträger, Solarenergie
Energieeffizienz KlasseA+
Endenergiebedarf8 kWh/(m²·a)
HeizungsartZentralheizung
EnergieträgerAlternativ Heizung, Solar, Luftwärmepumpe
A+
A
B
C
D
E
F
G
H

Sind Sie genauso begeistert wie wir? Jetzt Exposé anfordern und direkt durchstarten!

Ihre neue Immobilie wartet schon auf Sie und ist nur noch wenige Klicks entfernt.